Wettbewerb Schulanlage Kappel
Veranstalter: Einwohnergemeinde, 4616 Kappel
-
2011
Öffentlicher Wettbewerb
3. Rang -
Galerie
-
Wettbewerbsaufgabe
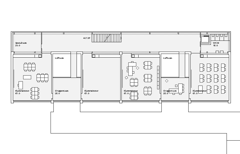
- Die Zahl der schulpflichtigen Kinder in der Gemeinde Kappel wird in den nächsten Jahren ansteigen. Deshalb soll die bestehende Primarschulanlage erweitert werden. Weitere Anforderungen sind Gruppenzimmern und Spezialräumen für den integrativen Unterricht sowie ein verbessertes Raumangebot für die Verwaltung und den Lehrkörper.
-
Projektbeschrieb
- Die interne Erschliessung des bestehenden Primarschulhauses erfolgt neu über eine zusätzliche Raumschicht auf der Nordseite des Gebäudes. Dadurch können die geforderten Gruppenräume in den ehemaligen Vorzonen zwischen je zwei Schulzimmern angeordnet werden. Die volumetrischen Klärung einer vor fünfzehn Jahren erfolgten Gebäudeaufstockung ermöglicht es, im 3. Obergeschoss vier zusätzliche Klassenzimmer anzubieten. Die für die Verwaltung den Lehrkörper zusätzlich geforderten Räume liegen an gut zugänglicher Stelle im Erdgeschoss.
-
Auszug Jurybericht
- „Gesamthaft handelt es sich um einen Eingriff, der einen sehr interessanten Umgang mit dem bestehenden Schulhaus aufzeigt. Die Effekte mit den Lufträumen sind überraschend. Die Schulzimmer bleiben aber in ihrer Grösse bestehen und werden auch so ergänzt. Die städtebauliche Situation bleibt erhalten und der Umgang mit den Landressourcen ist optimal.“





